霧光私寓

RESIDENTIAL SPACE | 住宅
客廳
客廳電視牆
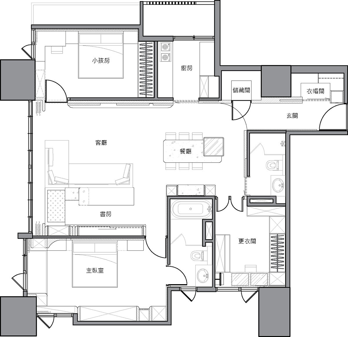
客廳 客廳、書房 書房 書房 客廳、餐廳 餐廳 餐廳看客廳 主臥
主臥 床頭櫃
主臥 床頭櫃
主臥 主臥 主臥 衣櫃 主臥 床頭櫃 更衣室 更衣室 次臥 次臥
consult-button